Centrum kultury i aktywności lokalnej nowe żerniki
- RODZAJ INWESTYCJIOBIEKT UŻYTECZNOŚCI PUBLICZNEJ
- INWESTORZAKŁAD INWESTYCJI MIEJSKICH WE WROCŁAWIU
- LOKALIZACJAWROCŁAW- NOWE ŻERNIKI,POLSKA
- DATA2013 r.
- NAGRODAWyróżnienie w konkursie na opracowanie koncepcji Centrum Kultury i Aktywności Lokalnej Nowe Żerniki
- ZESPÓŁSZCZEPAN WROŃSKI
ZBIGNIEW WROŃSKI
AGNIESZKA ŁAŃKO
MARCIN JURUSIK
MATEUSZ GRACZYK
MARCIN BIEŃKA
MATEUSZ MAZUROWSKI
2013•10•11
Centrum Kultury i Aktywności Lokalnej Nowe Żerniki
Założenia projektowe
Poprzez przekształcenie krajobrazu oraz kreowanie przestrzeni chcemy stworzyć atmosferę miejsca odpowiadającą na potrzeby mieszkańców. Używając prostych środków, dobierając odpowiednią skalę, materiały, projektujemy budynek oraz jego otoczenie sprzyjające integracji oraz aktywizacji użytkowników. Chcemy pobudzić do aktywności, stworzyć miejsce do odpoczynku, rekreacji oraz przestrzeń do kontemplacji i obcowania ze sztuką.
Rozwiązania urbanistyczne
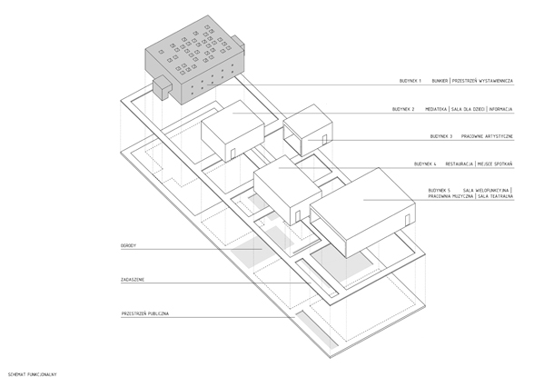
Na terenie objętym opracowaniem zaprojektowano Centrum Kultury w formie luźno rozmieszczonych bloków funkcjonalnych połączonych ze sobą wspólną szyną architektoniczno- urbanistyczną. Budynek usytuowany jest na osi istniejącego bunkra oraz planowanych alei zielonych podkreślając przyjęte w planie miejscowym założenia. Aby płynnie połączyć planowaną zabudowę mieszkaniowo-usługową z projektowanym obiektem Centrum Kultury zaproponowano rozsunięcie projektowanych budynków, tworząc w ten sposób zielone patia ? zlokalizowane wokół całego obszaru opracowania. Wejście do projektowanego założenia możliwe jest z każdej strony, co akcentuje tym samym otwartość i dostępność. Sam teren stanowić ma zieloną wyspę z rozproszonymi ciągami utwardzonymi.
Nowoprojektowana zabudowa stanowi kompromis między istniejącą zabudową jednorodzinną od strony północnej, planowaną zabudową szeregową niską, jedno i wielorodzinną od zachodu i planowaną zabudową wielorodzinną od wschodu. Punktem wyjścia jest podłużna bryła podzielona na mniejsze elementy będące pochodną wielkości planu poziomego budynku bunkra. Każda bryła posiada własny plac. Całość przekryta jest jednym dachem okalającym także budynek bunkra tworząc tym samym jedno spójne założenie.
Plac wokół budynku tworzą okrągłe pola o średnicy 80 cm, zagęszczone przy strefach wejściowych do budynku i stopniowo rozpraszające się do granic działki. Okrągłe platformy drewniane tworzą elementy małej architektury, zadaszenia oraz oświetlenie. Fragmenty nawierzchni utwardzonej prowadzące do budynków zaproponowano z naturalnie stabilizowanych mineralnych nawierzchni przepuszczalnych, co bardzo dobrze harmonizuje się z dziką roślinnością oraz proponowanymi rozwiązaniami małej architektury. Planowane jest pozostawienie jak największej ilości obecnej dzikiej zieleni, utrzymując naturalny, sielski charakter otoczenia. Swobodnie rosnąca zieleń w postaci wysokich traw, drzew, krzewów oraz polnych kwiatów, okala nowe, okrągłe elementy małej architektury. Całość tworzy jednolitą spójną strukturę, w którą wkomponowuje się projektowany budynek.
Od strony południowej zaprojektowano zbiornik wodny o nieregularnym kształcie, porośnięty gęsto wodną roślinnością oraz trzciną, pełniący istotną rolę przy retencji wody deszczowej. Tutaj latem mogą odbywać się koncerty ,wydarzenia kulturalne. Dodatkową przestrzenią zewnętrzną jest kino letnie. Na ścianie południowej bunkra zaproponowano ekran kinowy a schody zewnętrzne mogą działać jak widownia.
Rozwiązania architektoniczne
Budynek bunkra został dostosowany do potrzeb nowoczesnej przestrzeni wystawienniczej, zachowując surowy charakter i wydobywając jego oryginalne, architektoniczne walory. Poprzez niewielkie ingerencje w konstrukcję oraz układ funkcjonalny budynku, zaadaptowano go na potrzeby nowej funkcji Centrum Kultury.
Bryłę nowoprojektowanej części budynku tworzą cztery prostopadłościenne formy tej samej wysokości, będące pochodną rzutu poziomego istniejącego budynku bunkra. Dzięki przesunięciom brył zyskujemy dodatkowe przestrzenie między budynkami, tworzące korytarze między nimi oraz zielone patia. Dodatkową zaletą tego rozwiązania jest odizolowanie akustyczne. Budynki oraz przestrzenie między budynkami mogą działać niezależnie lub łączyć się. Dzięki temu zyskujemy wielofunkcyjność użytkowania całego założenia. Projektowane zadaszenie zewnętrzne, powielające komunikację między poszczególnymi budynkami, chroni użytkowników przed czynnikami atmosferycznymi. Projektowane budynki od strony patia mają przesuwną, przeszkloną na całej wysokości ścianę. Zarówno po zamknięciu jak i otwarciu elementów przesuwnych uzyskujemy stały kontakt z zielenią oraz panoramiczny widok w stronę natury. Wysokość zabudowy jest niższa od istniejącego budynku bunkra podkreślając tym samym jego odrębność. Natomiast dzięki okalającemu całość założenia, zewnętrznemu zadaszeniu włącza się nierozerwalnie w nowoprojektowany układ.
- Wizualizacja- ujęcie A
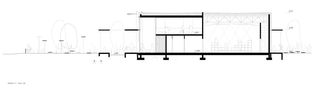
- przekroj 1
- przekroj 2
- przekroj 3
- przekroj 4
- przekroj 5
- Plan zagospodarowania terenu
- Schemat funkcjonalny
- Elewacje
- Wizualizacja przestrzeni sali wielofunkcyjnej
- Wizualizacja przestrzeni sali zabaw dla dzieci
- Wizualizacja przestrzeni wystawienniczej wewnątrz bunkra
- Wizualizacja- ujęcie C
- Wizualizacja- ujęcie B













