Klub Studio w Krakowie
- RODZAJ INWESTYCJIOBIEKT UŻYTECZNOŚCI PUBLICZNEJ
- INWESTOR AKADEMIA GÓRNICZO-HUTNICZA
- LOKALIZACJA KRAKÓW, POLSKA
- POW. UŻYTKOWA 2968 m2
- POW. ZABUDOWY 1760 m2
- DATA2014 r.
- NAGRODA Wyróżnienie w konkursie na Opracowanie koncepcji architektonicznej na przebudowę, nadbudowę i rozbudowę budynku Klubu Studio przy ul. Budryka 4 w Krakowie
- ZESPÓŁSZCZEPAN WROŃSKI
ZBIGNIEW WROŃSKI
PIOTR ŁOSEK
EWA GAJDA - WIZUALIZACJESEBASTIAN KOCHEL
2014•04•03
Prosta, modernistyczna bryła obiektu znajduje odbicie w projektowanym wnętrzu tworząc jasno podzieloną przestrzeń i czytelnie rozplanowaną funkcję.
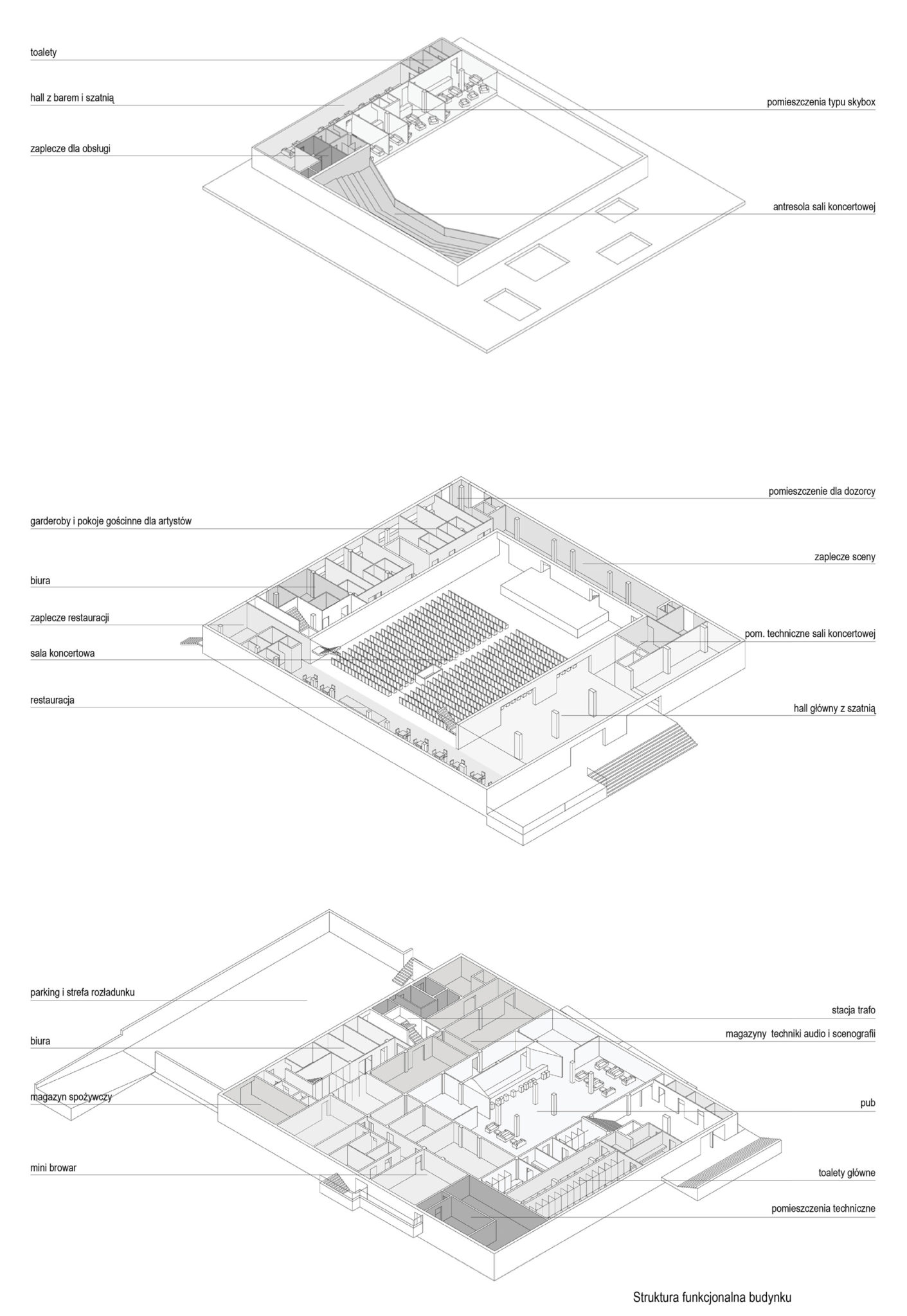
Praca konkursowa jest koncepcją przebudowy, nadbudowy i rozbudowy budynku Klubu Studio znajdującego się na terenie Miasteczka Studenckiego AGH. Głównym zadaniem konkursowym było powiększenie istniejącej sali koncertowej i dostosowanie jej do obecnych standardów. Budynek wzbogacił się również o restaurację/kawiarnię, pub, własny mini browar oraz niezbędne pomieszczenia towarzyszące. Obiekt pełni funkcję rozrywkową i jest ważnym miejscem na mapie studenckiego życia Krakowa. W zewnętrznym wyrazie architektonicznym budynek został utrzymany w charakterze pierwotnym, nawiązując bielą i prostotą formy do modernistycznego pierwowzoru. Na elewacji pojawiają się perforacje, których zadaniem jest z jednej strony odpowiednie, dostosowane do funkcji doświetlenie wnętrz, z drugiej jako element wzbudzający ciekawość przechodniów na to co dzieje się w środku nie odkrywając całości. Drobna siatka pozwala rozmieścić reklamy na elewacji nie zasłaniając widoku z wnętrza. Główne wejście do budynku ukształtowano w formie drewnianej platformy z miejscem na stoliki kawiarniane oraz jako szerokie schody prowadzące do sali koncertowej i pubu. Forma ta miała również za zadanie otworzyć budynek na przylegający skwer służąc jako miejsce spotkań w ciepłe, słoneczne dni. Prosta, modernistyczna bryła obiektu znajduje odzwierciedlenie w projektowanym wnętrzu tworząc jasno podzieloną przestrzeń i czytelnie rozplanowaną funkcję. Wnętrza budynku nawiązują do górniczo-wydobywczego charakteru uczelni wprowadzając do środka elementy stalowe i miedziane wykończone i poddane różnej obróbce, dopasowując materiał do funkcji. Parter budynku składa się z hallu prowadzącego do sali koncertowej, restauracji oraz zaplecza techniczno-hotelowego obiektu. Na kondygnacji przyziemia zlokalizowano pub, mini browar, magazyny, część biurową oraz toalety główne. Nadbudowana część Klubu wzbogaciła program funkcjonalny o loże VIP a także całe zaplecze niezbędne do ich obsługi.
- WIDOK NA STREFĘ WEJŚCIOWĄ
- SYTUACJA
- SALA KONCERTOWA
- WIDOK W KIERUNKU POŁUDNIOWYM
- KAWIARNIA I RESTAURACJA
- PUB
- HOL WEJŚCIOWY
- AKSONOMETRIA
- MAKIETA
- MAKIETA
- MAKIETA










