Koncepcja urbanistyczno-architektoniczna przebudowy stadionu miejskiego w Olsztynie
- RODZAJ INWESTYCJI: OBIEKT UŻYTECZNOŚCI PUBLICZNEJ
- INWESTOR GMINA OLSZTYN
- LOKALIZACJA OLSZTYN, POLSKA
- DATA 2015 r.
- NAGRODA Wyróżnienie w konkursie na opracowanie koncepcji urbanistyczno-architektonicznej przebudowy stadionu miejskiego w Olsztynie
- ZESPÓŁ
SZCZEPAN WROŃSKI, PAULINA KUCHARSKA, MARCIN KRUK, MAREK MIŚKIEWICZ, ZUZANNA ROSIŃSKA, AGATA FISIAK
2015•12•15
Koncepcja urbanistyczna
Koncepcja urbanistyczna zakłada powiązanie obszarów zabudowy wielorodzinnej z industrialną strefą zakładów Stomilu Olsztyn poprzez stworzenie nowego, wielofunkcyjnego centrum wokół stadionu miejskiego. Zaplanowano wyeksponowanie bryły stadionu w widoku z Alei Marszałka Józefa Piłsudskiego poprzez osiowe założenie kompozycji urbanistycznej.
Od południowej strony zaproponowano plac miejski o utylitarnym charakterze. Bryły centrum usługowego i hotelu domykają boczne ściany placu. Wprowadzono usługi i powierzchnie komercyjne w parterach budynków, co pozwala na wykreowanie placu miejskiego, funkcjonującego niezależnie od wydarzeń sportowych. Od strony Alei Marszałka Józefa Piłsudskiego plac rozpoczyna się rytmiczną sekwencją drzew. Centralną część placu zajmuje strefa działań i aktywności miejskich. W dalszej części placu zaprojektowano delikatne i płynne obniżenie w posadzce, tworzące taflę wodną. W zależności od potrzeb, nieckę wodną można przekształcić w przestrzeń wydarzeń masowych, koncertów czy sezonowych aktywności takich jak lodowisko, boiska siatkowe.
Trakt pieszy dla kibiców wydarzeń sportowych rozpoczynający się od Alei Marszałka Józefa Piłsudskiego doprowadza do zachodniej trybuny. Delikatnie opadająca rampa, przekształcająca się dalej w promenadę wyznacza granice dwóch stref ze względu na różnicę wysokości w terenie. Różnice w wysokości zaprojektowano jako amfiteatralne, płynne schody, trybuny plenerowe, rozpoczynające obszary zielone w parku im. Jana Kusocińskiego.
W północnej części terenu zaprojektowano strefę treningową, z pełnowymiarowym boiskiem do piłki nożnej, oświetlonym masztami oraz boiskiem ze sztuczną trawą. Plac zapleczowy i wjazd na parkingi zaprojektowano w północnej części, od ul. W. Leonharda.
Koncepcja architektoniczna
Miasto, jako stolica Warmii, przywołuje silne skojarzenia z krainą jezior i żeglarstwem. Przetransformowana forma żagli stanowi punkt wyjścia do kształtowania elewacji obiektu. Lekkość białych membran, ciętych brytów, dynamika kompozycji budzi skojarzenia ze startem regatowym czy żaglówkami migoczącymi na horyzoncie. Lustro wody przed stadionem poprzez odbicia płaszczyzn elewacji i świateł dodatkowo wzmacnia wrażenie lekkości i odniesień do krajobrazu mazurskich jezior. Główną intencją było stworzenie tożsamości obiektu spójnego z miastem. Nowy stadion ma być mocnym akcentem identyfikującym Olsztyn.
- widok z lotu ptaka
- widok z placu miejskiego/inspiracje
- widok na kubaturę użytkową stadionu
- zagospodarowanie terenu
- przekrój
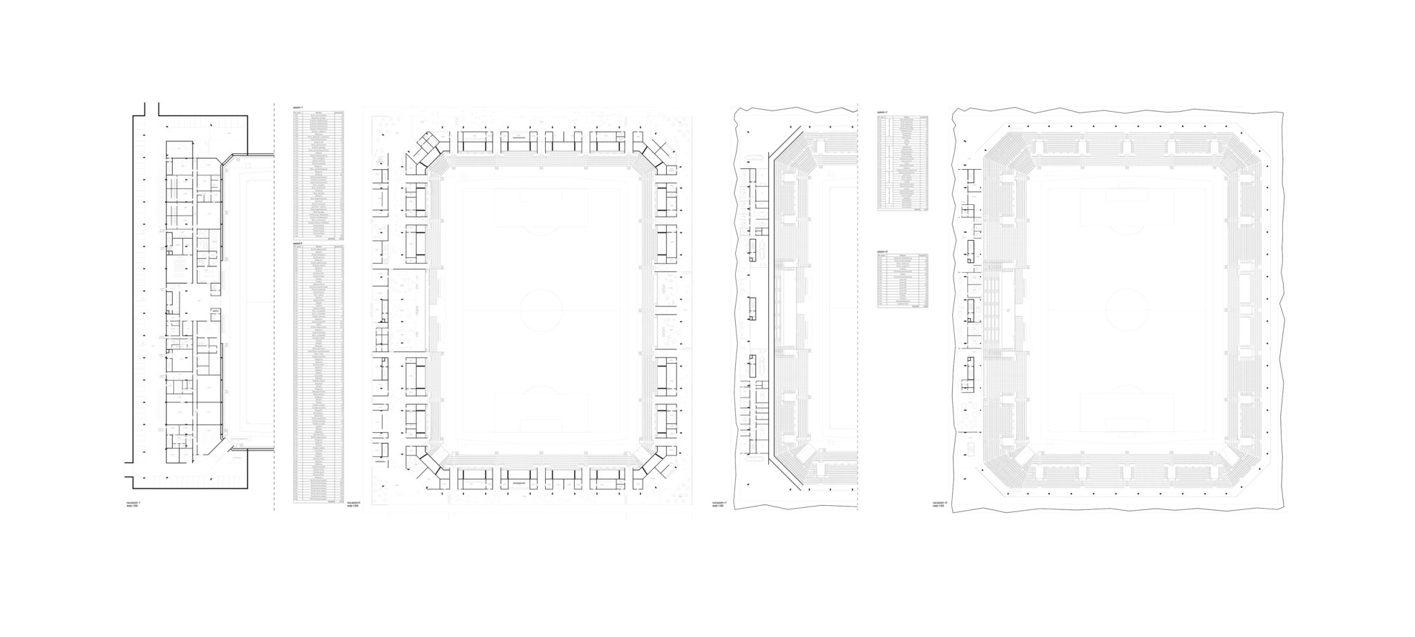
- rzuty
- widok z trybun






