miasteczko multimedialne
- RODZAJ INWESTYCJIOBIEKT UŻYTECZNOŚCI PUBLICZNEJ
- INWESTORMIASTECZKO MULTIMEDIALNE SPÓŁKA Z O.O.
- LOKALIZACJANOWY SĄCZ
- POW.UŻYTKOWA11 994m2
- DATA2008
- CENA4000 pln/m2
- ZESPÓŁSZCZEPAN WROŃSKI
ZBIGNIEW WROŃSKI
GZREGORZ SŁAWIŃSKI
2010•06•07
Kontekst ideowy zakłada przekształcenie Nowego Sącza w jeden z kilku najbardziej innowacyjnych ośrodków na świecie w dziedzinie multimediów i systemów informacyjnych; łączący cele i zadania inkubatora przedsiębiorczości, ośrodka badawczo-rozwojowego oraz ponadregionalnego centrum innowacyjności.
Pozornie trudna lokalizacja, pomogła wyeksponować budynki, o narzuconej przez warunki zabudowy dosyć małej wysokości, dzięki ich spiętrzeniu na zboczu góry. Za najbardziej zasadne podejście uznaliśmy nawiązanie dialogu z naturą dopasowując formę obiektów do „linii papilanych” pagórka. Powstał budynek składający się z trzech trzykondygnacyjnych pasów kubatur o uzupełniającej się funkcji. Do każdej części zaprojektowano wejście z innego poziomu. Krzywoliniowe kształty owych pasów wyznaczone są przez przebieg poziomic. Takie rozwiązanie ma również uzasadnienie ekonomiczne. Prostopadłościenna bryła byłaby obca w tym kontekście i jej realizacja wiązałaby się z kosztownym dopasowywaniem terenu do projektu. Doceniając bezcenną wartość przyrody okolic Nowego Sącza, nasz projekt swym opływowym kształtem i subtelnym detalem wpisze się w otaczający krajobraz i będzie jego uzupełnieniem.
Szczególny nacisk położony został na bilans energetyczny budynku. Brane były pod uwagę koszty budowy ale i również koszty eksploatacyjne. By spełnić ten warunek zaproponowano zastosowanie innowacyjnych, energooszczędnych technik odpowiedzialnych za komfort cieplny budynku, pozyskiwania energii ze źródeł naturalnych, magazynowania energii. Forma budynku wynika bezpośrednio z ukształtowania terenu. Kolejne pasy ustawione są na zboczu wyżej o jedną kondygnację w stosunku do poprzedniego, zgodnie z nachyleniem stoku. Daje to możliwość doświetlenia pomieszczeń w pasach położonych w głąb działki oraz, co równie cenne, działa korzystnie na wizerunek budynku.
- The mail view
- functional scheme
- section 3
- section 2
- section 1
- plan – level 3&4
- plan – level 2
- visualisation 5
- visualisation 3
- visualisation 2
- visualisation 4
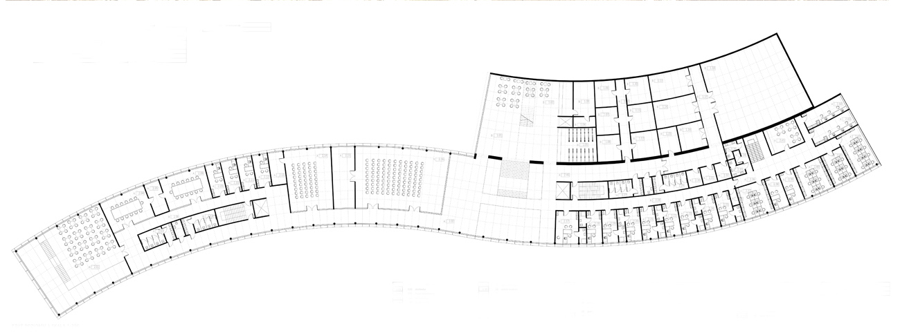
- plan – level 1
- plan – level 0












