KOMPLEKS MUZEÓW NA CYTADELI WARSZAWSKIEJ/ Muzeum Historii Polski
RODZAJ INWESTYCJI: OBIEKT UŻYTECZNOŚCI PUBLICZNEJ
INWESTOR: MUZEUM HISTORII POLSKI
LOKALIZACJA: UL. DYMIŃSKA 13, TEREN CYTADELI WARSZAWSKIEJ, ŻOLIBORZ, WARSZAWA
DATA: 2016- 2017
KUBATURA BRUTTO: ok. 432 340 m3
POWIERZCHNIA CAŁKOWITA: ok. 53 688 m2
POWIERZCHNIA NETTO: ok. 44 700 m2
ZESPÓŁ:
ARCH. SZCZEPAN WROŃSKI
ARCH. PAWEŁ GRODZICKI
ARCH. KRZYSZTOF BUDZISZ
ARCH. MARTA SĘKULSKA- WROŃSKA
ARCH. KATARZYNA BILLIK
ARCH. RAFAŁ BOGUSZEWSKI
ARCH. KAMIL CEDZYŃSKI
ARCH. ANNA DOBEK
ARCH. MAŁGORZATA GILARSKA
ARCH. BEATA GŁAZ
ARCH. MARCIN JURUSIK
ARCH. LUDWIK KAIZERBRECHT
ARCH. MICHAŁ KASPRZYK
ARCH. MARCIN KRUK
ARCH. PAULINA KUCHARSKA
ARCH. ANNA MAJEWSKA
ARCH. KRZYSZTOF MARCISZEWSKI
ARCH. ADAM MIERZWA
ARCH. MARIUSZ NIEMIEC
ARCH. MAGDALENA NOWAK
ARCH. MAGDALENA J. NOWAK
ARCH. BARBARA PŁONCZYŃSKA
ARCH. MICHAŁ STANISZEWSKI
ARCH. ŁUKASZ SZCZEPANOWICZ
ARCH. KAJETAN SZOSTOK
ARCH. KRYSTIAN TOMCZYK
ARCH. PAWEŁ WOLANIN
ARCH. MICHAŁ ŻUREK
WSPÓŁPRACA:
KONSTRUKCJA, INSTALACJE SANITARNE, ELEKTRYCZNE, TELETECHNICZNE- WSP,
PROJEKT ZIELENI- RS ARCHITEKTURA KRAJOBRAZU
DANE TECHNICZNE:
ILOŚĆ KONDYGNACJI NADZIEMNYCH- 4
ILOŚĆ KONDYGNACJI PODZIEMNYCH- 2
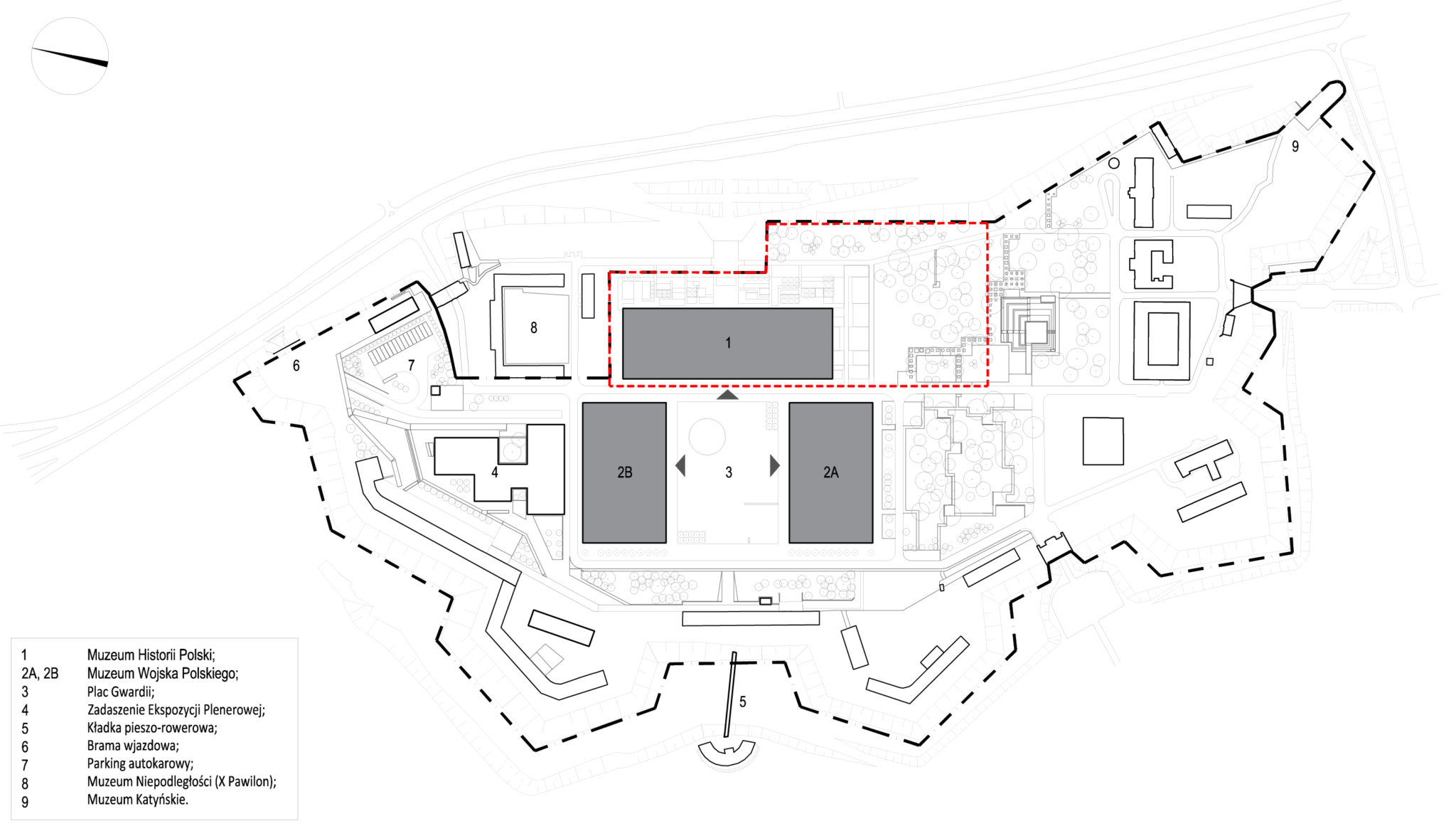
ILOŚĆ PODZIEMNYCH MIEJSC PARKINGOWYCH: 322 Z 697 REALIZOWANYCH W RAMACH PARKINGU PODZIEMNEGO DLA KOMPLEKSU MUZEÓW NA CYTADELI WARSZAWSKIEJ.
2018•03•26
Nowy gmach MHP powstanie w zespole muzealnym, do którego należeć będzie już istniejące Muzeum X Pawilonu, Muzeum Katyńskie oraz powstające Muzeum Wojska Polskiego. Muzeum Historii Polski zajmie główne miejsce w całym kompleksie. Powstanie nowych obiektów będzie krokiem w kierunku otwarcia i udostępnienia terenu Cytadeli dla mieszkańców Warszawy i przekształcenia go w „park muzeów” o ponadlokalnym znaczeniu.
Architektura budynku Muzeum Historii Polski jest świadomie budowaną narracją. Jest zapisaną w kamieniu i współczesnej formie: opowieścią o nawarstwianiu historii, odkrywaniu, odsłanianiu wielorakich znaczeń przeszłości, otwartości oraz o wolności, będącej hasłem przewodnim Muzeum. Kamienna bryła w swym wizualnym wyrazie odnosi się do nawarstwień czasu budujących materię historii. W kolejnych warstwach, niczym w przekroju archeologicznym, dostrzegamy ślady ludzkich działań, zdarzeń historii, epok. Indywidualny rysunek („osobowość”) każdej płyty kamienia, ich formacje, kompozycje, ornamentowe przetworzenia tworzą misterną tkankę wyrażającą tak indywidualny, jak zbiorowy wymiar historii, nakładanie się naturalnych i kulturowych procesów, budowanie i zacieranie pamięci. Ten zapis czasu w materii trwa.
Przestrzenne otwarcia „bryły czasu” na kondygnacji wystawowej oraz na poziomie parteru, kontynuowane jako sieć powiązanych przestrzeni we wnętrzu, są materializacją idei otwartości, przyjazności Muzeum, procesu odkrywania, zanurzenia w materię czasu, wielowymiarowości spojrzeń na historię, wolności wyboru dróg poznawania, tworzenia własnych narracji. Przeszklone otwarcia w fasadach budynku będą też sposobem komunikowania w otoczeniu aktualnych aktywności wypełniających różne części Muzeum. Jednym z najważniejszych instrumentów kształtowania atmosfery wnętrz Muzeum jest światło, zarówno to naturalne wlewające się przez otwarcia powłoki budynku z zewnątrz jak i sztuczne, przenikające i łączące widokowo przestrzenie wewnętrzne.
Muzeum Historii Polski będzie jednym z najnowocześniejszych muzeów powstających obecnie w Polsce i Europie, odwiedzanym przez ok. 500.000 gości rocznie. Będzie miejscem wielowymiarowego kontaktu z historią Polski, refleksji, a także dyskusji, zdobywania wiedzy, kontaktu z kulturą, ośrodkiem życia społecznego. Oprócz przestrzeni wystawowych, w muzeum znajdą miejsce sale edukacyjne i warsztatowe, audytoryjne, projekcyjne, gastronomia, pracownie konserwatorskie, magazyny muzealiów.
Wystawa stała Muzeum Historii Polski będzie jedną z największych przestrzeni wystawienniczych w Polsce, licząc 7 tys. m2. Wystawa jest realizowana przez zespół historyków Muzeum Historii Polski przy współpracy z historykami, historykami sztuki i ekspertami z najlepszych polskich uczelni i PAN. Wystawa będzie miała charakter narracyjny, będzie opowiadać ponad 1000 lat dziejów Polski przy pomocy oryginalnych zabytków oraz scenografii i multimediów tworzących przestrzeń doświadczenia przeszłości.
- MUSEUM KOMPLEX ON THE WARSAW CITADEL/ MUSEUM OF POLISH HISTORY
- MUSEUM KOMPLEX ON THE WARSAW CITADEL/ MUSEUM OF POLISH HISTORY
- MUSEUM KOMPLEX ON THE WARSAW CITADEL/ MUSEUM OF POLISH HISTORY
- MUSEUM KOMPLEX ON THE WARSAW CITADEL/ MUSEUM OF POLISH HISTORY



