MUZEUM KSIĄŻĄT LUBOMIRSKICH
RODZAJ INWESTYCJI: OBIEKT UŻYTECZNOŚCI PUBLICZNEJ
INWESTOR: ZAKŁAD NARODOWY IM. OSSOLIŃSKICH
LOKALIZACJA: WROCŁAW
POWIERZCHNIA UŻYTKOWA: 9 100 m2
ZESPÓŁ:
ARCH. SZCZEPAN WROŃSKI
ARCH. ANNA DOBEK
ARCH. ANNA MAJEWSKA
ARCH. MARCIN JURUSIK
ARCH. MICHAŁ CZERWIŃSKI
WIZUALIZACJE: DOTDESIGNSTUDIO, PLANKTON
2018•06•04
IDEA KOLEKCJONERSTWA, CIĄGŁOŚĆ, TOŻSAMOŚĆ
Projektowany budynek Muzeum Książąt Lubomirskich to współczesny miejski pałac o otwartej, swobodnej strukturze. Rytmiczne podziały, silnie zarysowane porządki, wyważone proporcje są współczesnym wyobrażeniem klasycznej miejskiej rezydencji – Pałacu Kolekcji Lubomirskich, w którym miejsce dziedzińca zajęły przestrzenie magazynowania zbiorów – serce zgromadzonej kolekcji.
Masywne, utkane z drobnych kamiennych bloków ściany piętrzą się misternie tworząc wraz z otworami okiennymi wyraźną gradację struktury, tradycyjny, niemal klasyczny porządek ujęty w swobodną kompozycję. Rytm otworów początkowo odczytywany jako jednorodny, rygorystyczny okazuje się uwolniony od matematycznej siatki, tworzący nieregularny, lecz dążący do harmonii rysunek. Minimalistyczny detal oraz zestawienie z przeziernością i lekkością szklenia nadaje budynkowi zdecydowanie współczesny charakter inspirując refleksję nad wpływem tradycji na współczesność oraz ciągłością w architekturze i sztuce.
- Muzeum Książąt Lubomirskich we Wrocławiu
- Muzeum Książąt Lubomirskich we Wrocławiu
- Muzeum Książąt Lubomirskich we Wrocławiu
- Muzeum Książąt Lubomirskich we Wrocławiu
- Muzeum Książąt Lubomirskich we Wrocławiu
- Muzeum Książąt Lubomirskich we Wrocławiu
- Muzeum Książąt Lubomirskich we Wrocławiu
- Muzeum Książąt Lubomirskich we Wrocławiu
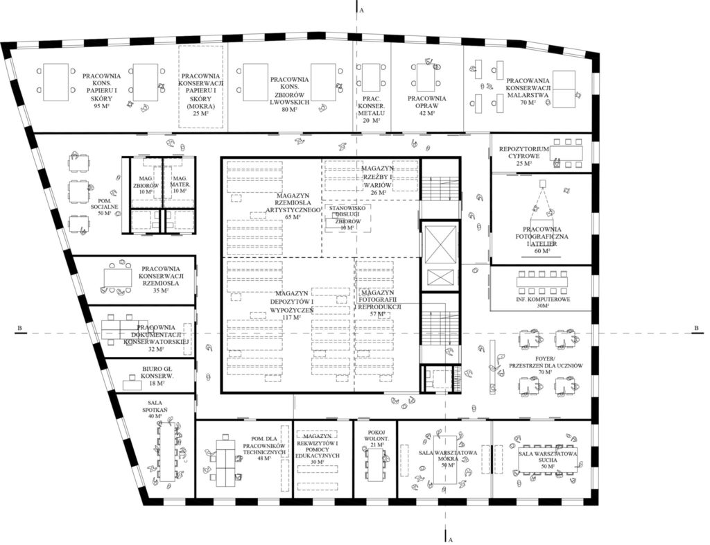
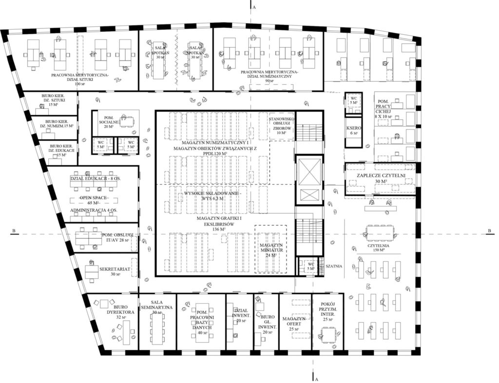
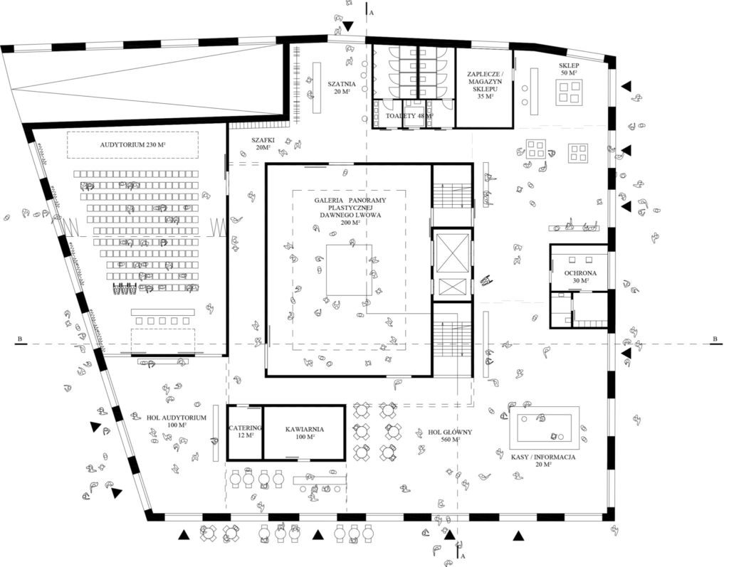
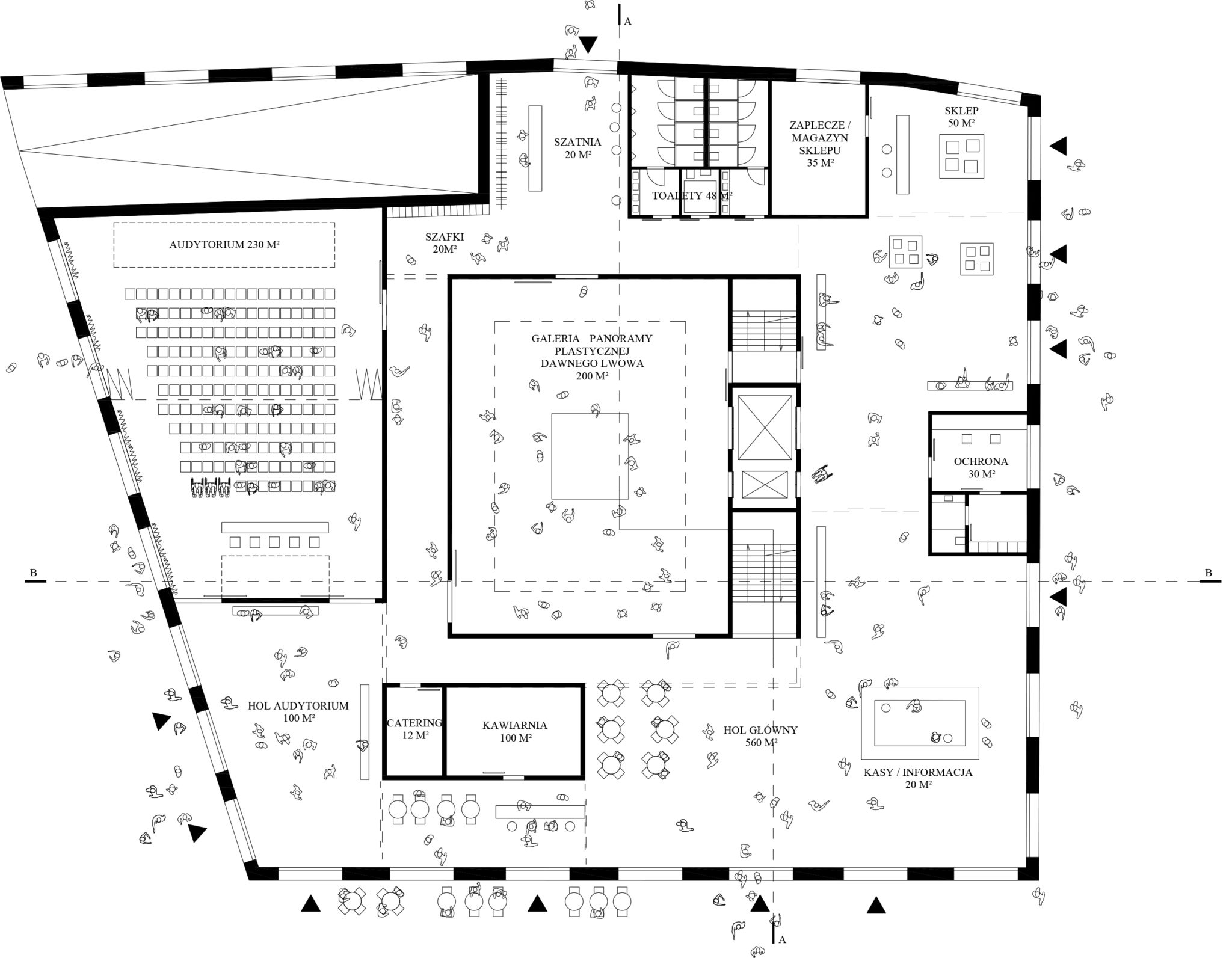
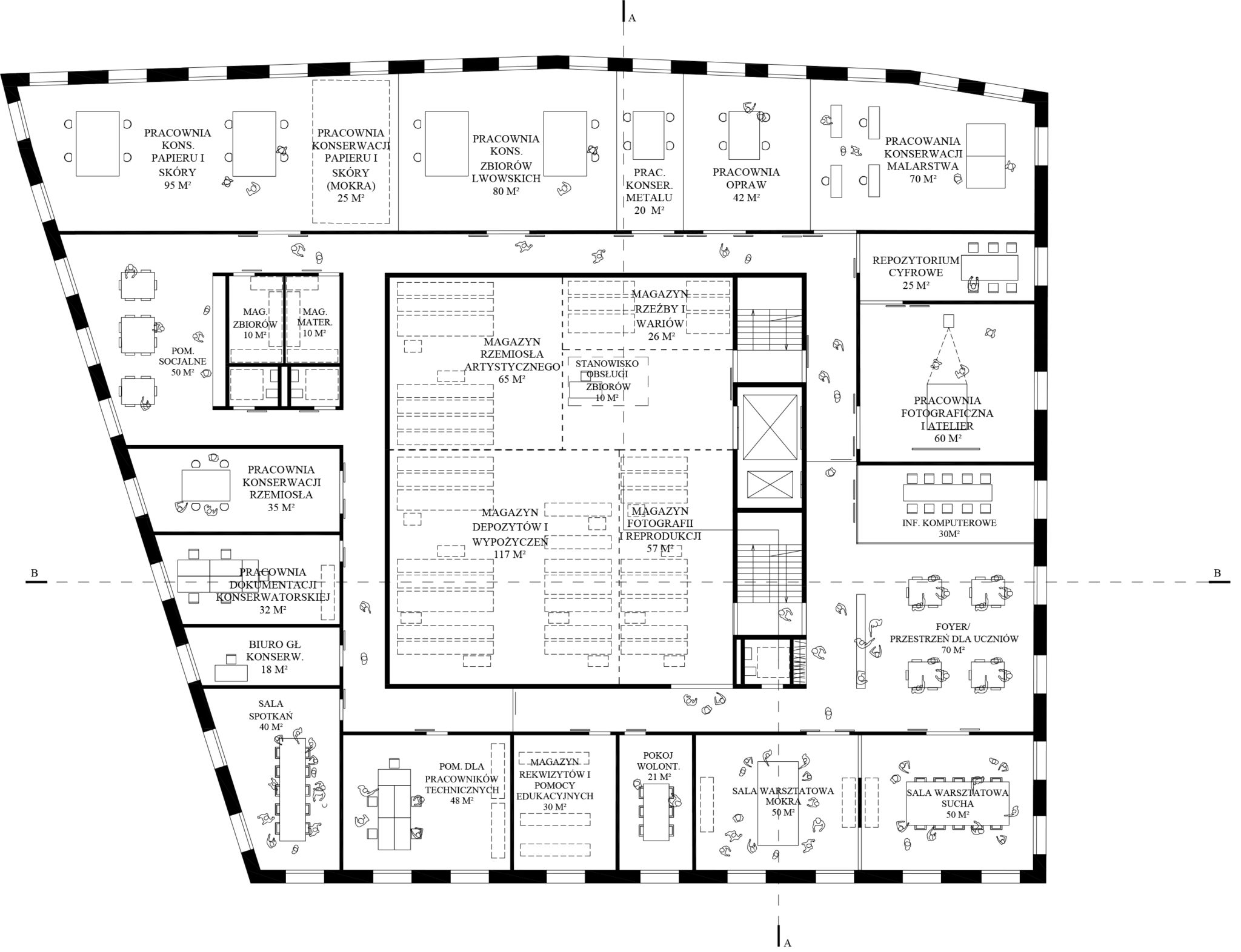
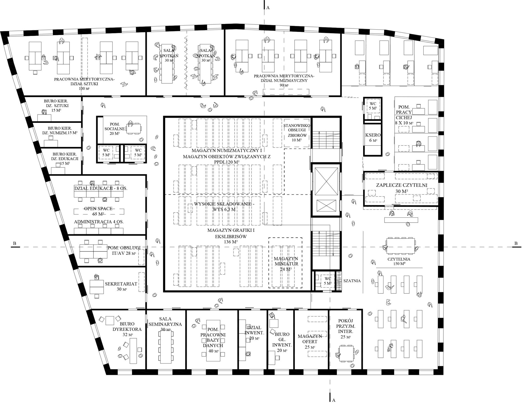
- Muzeum Książąt Lubomirskich we Wrocławiu – plan piętra
- Muzeum Książąt Lubomirskich we Wrocławiu – plan piętra
- Muzeum Książąt Lubomirskich we Wrocławiu – plan piętra
- Muzeum Książąt Lubomirskich we Wrocławiu – plan piętra
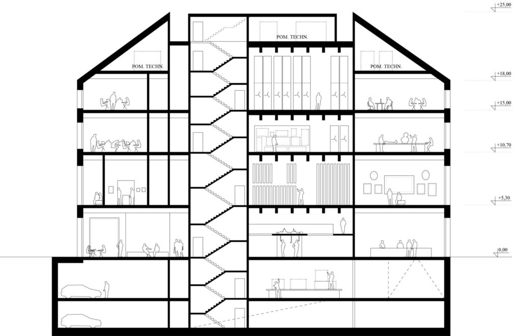
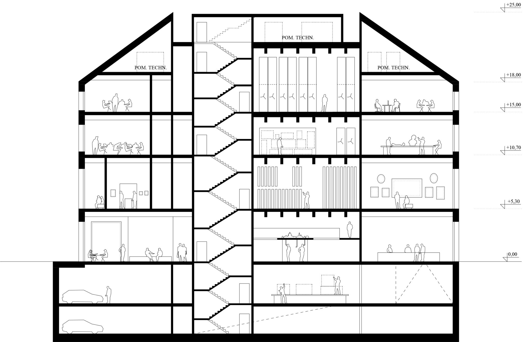
- Muzeum Książąt Lubomirskich we Wrocławiu – przekrój
- Muzeum Książąt Lubomirskich in Wroclaw- site plan













