KOMPLEKS MUZEÓW NA CYTADELI WARSZAWSKIEJ/ Muzeum Wojska Polskiego- Budynek Południowy
KOMPLEKS MUZEÓW NA CYTADELI WARSZAWSKIEJ/ MUZEUM WOJSKA POLSKIEGO- BUDYNEK POŁUDNIOWY
RODZAJ INWESTYCJI: OBIEKT UŻYTECZNOŚCI PUBLICZNEJ
INWESTOR: MUZEUM WOJSKA POLSKIEGO
LOKALIZACJA: TEREN CYTADELI WARSZAWSKIEJ, ŻOLIBORZ, WARSZAWA
DATA: 2015- 2017
KUBATURA CAŁKOWITA: 103 984 m3
POWIERZCHNIA CAŁKOWITA: 12 744 m2
POWIERZCHNIA UŻYTKOWA: 10 965 m2
ILOŚĆ KONDYGNACJI NADZIEMNYCH: 2
ILOŚĆ KONDYGNACJI PODZIEMNYCH 1
ILOŚĆ MIEJSC PARKINGOWYCH: 691 (REALIZOWANYCH W RAMACH PARKINGU PODZIEMNEGO DLA KOMPLEKSU MUZEÓW)
ZESPÓŁ:
ARCH. SZCZEPAN WROŃSKI
ARCH. PAWEŁ GRODZICKI
ARCH. MARTA SĘKULSKA- WROŃSKA
ARCH. MICHAŁ GRABOWSKI
ARCH. MAŁGORZATA GILARSKA
ARCH. PAWEŁ WOLANIN
ARCH. ANNA DOBEK
ARCH. KATARZYNA BILLIK
ARCH. KAJETAN SZOSTOK
ARCH. ADRIANNA NOWAK
2018•03•25
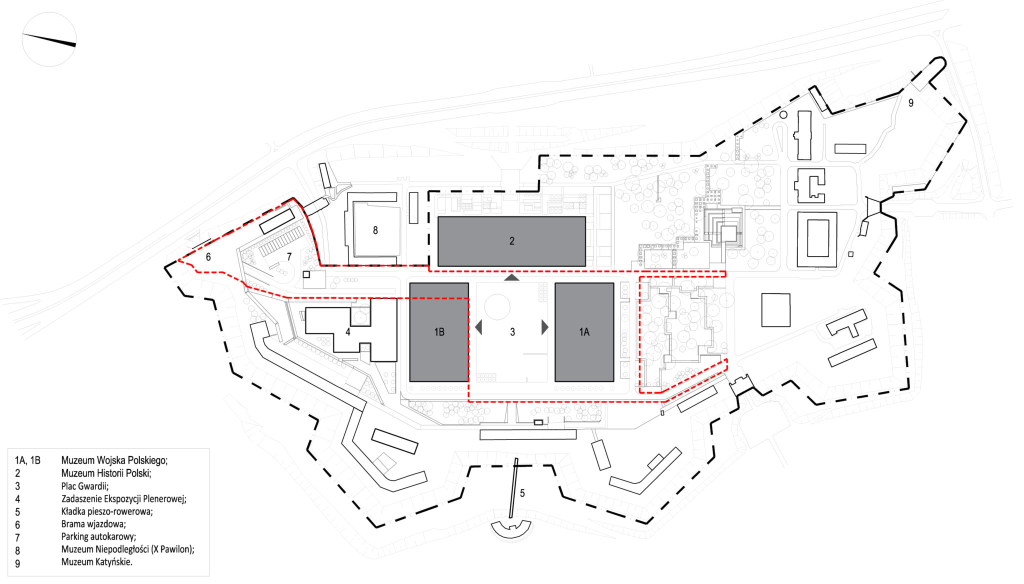
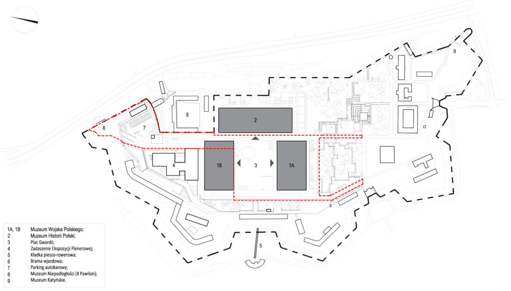
Powstanie Kompleksu Muzeów ma być pierwszym, najważniejszym krokiem otwierającym Cytadelę Warszawską dla mieszkańców dzielnicy i miasta. Koncentracja nowych siedzib instytucji kulturalno-edukacyjnych ma zmienić znaczenie wzgórza Żoliborskiego również w skali kraju, będzie to miejsce dedykowane polskiej historii. Oprócz zintegrowanego z tkanką historyczną zespołu będzie można korzystać z walorów krajobrazowych i ekspozycji plenerowych. Obiekty skupione wokół Placu Gwardii, odtworzą historyczne założenie, oraz zapoczątkują wprowadzenie ładu urbanistycznego. Jednym z nich będzie budynek południowy Muzeum Wojska Polskiego.
Obiekt będzie się składać z ośmiu bloków funkcjonalnych, spiętych masywem dachu tworząc razem spójną kompozycję. Trzy największe bloki dla ekspozycji stałej będą prezentowały chronologiczną historię Oręża Polskiego. Czwarty ma być w przyszłości przeznaczony na niezwykłą kolekcję broni orientalnej. W kolejnym, przeznaczonym dla ekspozycji czasowej, będą prezentowane wystawy okolicznościowe, oraz wyjątkowe eksponaty z innych muzeów. Istnieje możliwość, by salę zaaranżować dla potrzeb wykładu, również łącząc ją z tematyczną wystawą. Dla potrzeb użytkowników zaplanowano również blok z salą audiowizualną, którą można będzie wykorzystywać niezależnie od ekspozycji. Całość dopełniają bloki usługowo-biurowy i techniczno-magazynowy. Przestrzenie pomiędzy blokami posłużą komunikacji pomiędzy salami i pozwolą odwiedzającym na podziwianie parku Cytadeli.
Monumentalność i surowość nowej siedziby ma zostać przełamana subtelnością występującą na powierzchni masywnych bloków. Specjalnie dla Muzeum zaprojektowano wyjątkowy, przestrzenny wzór, który zostanie odciśnięty w ścianach z betonu barwionego w masie. Światło i cień grające na fasadzie dodadzą surowym ścianom niezwykłości i sprawią, że każda wizyta na Cytadeli będzie niepowtarzalnym doznaniem estetycznym, o każdej porze roku.
- Polish Army Museum/ South Building
- Polish Army Museum/ South Building
- Polish Army Museum/ South Building
- Polish Army Museum/ Site plan



