Pawilon Polski na EXPO 2015 w Mediolanie
- RODZAJ INWESTYCJIOBIEKT UŻYTECZNOŚCI PUBLICZNEJ
- INWESTOR POLSKA AGENCJA INFORMACJI I INWESTYCJI ZAGRANICZNYCH
- LOKALIZACJA MEDIOLAN, WŁOCHY
- POW. UŻYTKOWA 1835 m2
- DATA2014 r.
- NAGRODA Druga nagroda w "Konkursie architektonicznym na Pawilon Polski wraz z projektem ekspozycji wewnętrznej i zagospodarowanie terenu przyległego podczas EXPO 2015 w Mediolanie"
- ZESPÓŁ WXCA:
SZCZEPAN WROŃSKI
ZBIGNIEW WROŃSKI
MAŁGORZATA DEMBOWSKA
ANNA MAJEWSKA
MARCIN JURUSIK
MICHAŁ CZERWIŃSKI
ANNA DOBEK
PLATIGE IMAGE:
MARCIN KOBYLECKI
KRZYSZTOF NOWORYTA
TOBIASZ PIĄTKOWSKI
JAN POMIERNY
2014•06•06
„Teatralna symbolika mobilnej elewacji z lnu”
Punktem wyjścia dla powstania koncepcji pawilonu Polskiego EXPO 2015 było poszukiwanie elementu łączącego główne założenia całej wystawy z potrzebą prezentacji dorobku Polski na wielu płaszczyznach. Różnorodność i bogactwo polskiej oferty stały się więc podstawą dla stworzenia koncepcji targu, pozwalającego na zachowanie spójności ekspozycji pomimo jej tematycznego zróżnicowania.
Czerpiąc inspirację z jednego z najbardziej znanych polskich kramów – krakowskich Sukiennic, które swój obecny kształt zawdzięczają włoskim mistrzom renesansu projektowany pawilon otwiera swoje arkady we wszystkich kierunkach, otaczając przestrzeń ekspozycji stałej znajdującej się wewnątrz obiektu. Forma arkad w polskich warunkach chronić miała głównie przed deszczem – w klimacie włoskim jest sprawdzoną formą ochrony przed słońcem, zapewniając komfortowe warunki prezentacji polskiego dorobku. Jest to istotne szczególnie w kontekście lokalizacji obiektu, który ze wszystkich stron otoczony jest ogólnodostępnymi przestrzeniami publicznymi – od strony zachodniej pawilon Polski sąsiaduje z aleją prowadzącą w kierunku nadwodnej promenady, od strony północnej – z promenadą, od strony wschodniej – z ogrodem publicznym oraz miejskim placem.
Poszukując odniesień do polskiej tradycji oraz nawiązania do hasła przewodniego wystawy projekt zakłada wykorzystanie lnu jako materiału budującego charakter pawilonu. Użycie tkaniny jako tworzywa budującego pawilon stanowi element promujący dorobek polskiego wzornictwa oraz Łódź – miasto bezpośrednio związane z tradycją włókienniczą i współczesnymi projektantami mody, jako organizatora jednej z kolejnych wystaw światowych EXPO.
Ponadto użycie tkaniny do ukształtowania elewacji pozwala w bardzo łatwy i niedrogi sposób uformować przestrzeń podcienia. Arkada utworzona przez uniesienie fragmentu materiału stanowi gest „otwarcia” i „zaproszenia” do jej wnętrza, tworząc jednocześnie przyjazną, rodzinną atmosferę łączącą polską i włoską kulturę. Jednocześnie każda z arkad może w bardzo prosty sposób zostać przekształcona w scenę lub kino (po opuszczeniu kurtyny), zapewniając w ten sposób dowolność aranżacji poszczególnych fragmentów budynku i integrując go z sąsiadującą przestrzenią publiczną.
Koncepcja ekspozycji zmiennej w podcieniu opiera się na zaproszeniu gości do wspólnego stołu, pozwalając na integrację użytkowników i kontakt z polską kulturą poprzez doświadczanie „polskiej gościnności”. Lokalizacja kuchni w centralnej części budynku pozwala na obsługę każdej strefy budynku, dlatego też pod każdą arkadą możliwe jest ustawienie dużego stołu, skupiającego odwiedzających pawilon. Jednocześnie cała przestrzeń podcieni może stanowić ekspozycję zmienną, zaaranżowaną w formie mobilnych boxów, w których umieszczone mogą być różnorodne polskie produkty. Łatwość zmiany takiej aranżacji stanowi wartość funkcjonalną obiektu i pozwala jednocześnie na wytworzenie charakteru żyjącej, swobodnej przestrzeni targu.
- WIZUALIZACJA
- PRZEKRÓJ
- RZUT- POZIOM 1
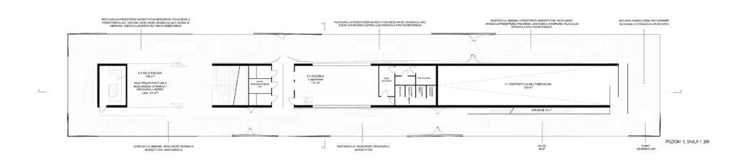
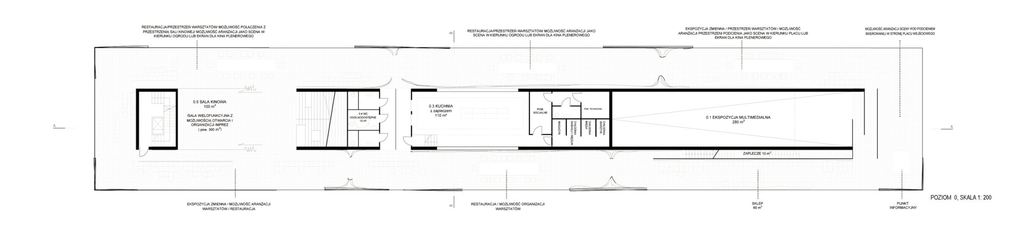
- RZUT- POZIOM 0
- SCHEMATY
- SYTUACJA
- ELEWACJA ZACHODNIA
- ELEWACJA POŁUDNIOWA
- ELEWACJA PÓŁNOCNA
- WIZUALIZACJA GŁÓWNEJ ALEI
- WIZUALIZACJA
- WYSTAWA_WIZUALIZACJA PLATIGE IMAGE











