Stare Miasto w Stargardzie Szczecińskim- zadanie 3
- RODZAJ INWESTYCJIOBIEKT UŻYTECZNOŚCI PUBLICZNEJ
- INWESTOR STARGARDZKIE TBS SP. Z O.O.
- LOKALIZACJA STARGARD SZCZECIŃSKI, POLSKA
- POW. UŻYTKOWA 1010 m2
- DATA2014 r.
- NAGRODA III nagroda w konkursie pn. "Rewitalizacja fragmentu obszaru Starego Miasta w Stargardzie Szczecińskim, położonego w rejonie ulic: Kazimierza Wielkiego, Bolesława Chrobrego, Spichrzowej, Kasztelańskiej, Basztowej, Włosienniczej, Kuśnierzy, Garncarskiej"..
- ZESPÓŁ ZBIGNIEW WROŃSKI
SZCZEPAN WROŃSKI
PATRYCJA MICHALAK- DĘBIEC
KRZYSZTOF MOSKAŁA
2014•05•09
Koncepcja rozbiórki i budowy usługowej kamienicy narożnej przy ul. Bolesława Chrobrego 21. Teren konkursowy położony jest w obszarze Starego Miasta w ścisłym centrum i stanowi część kwartału w obrębie ulic: Bolesława Chrobrego i Kasztelańskiej.
Rozwiązania architektoniczno – budowlane
Mieszczańska kamienica narożna usytuowana jest elewacją frontową, czteroosiową z wejściem do głównej sieni w osi skrajnej od zachodu wzdłuż ul. B. Chrobrego. Elewacja boczna od ul. Kasztelańskiej 9-osiowa, skomponowana niesymetrycznie wokół części środkowej – dwuosiowej, ze szczytem w formie wysokiej prostokątnej mansardy. Powstała w II połowie XIX w. w stylu neohistorycznym, nawiązującym kompozycją i zdobnictwem do klasycyzmu.
Nowy budynek kamienicy projektujemy jako 4-kondygnacyjny, bez podpiwniczenia. Oprócz reprezentacyjnego głównego wejścia od ul. Bolesława Chrobrego, proponujemy również przywrócenie pierwotnego wejścia od ul. Kasztelańskiej, które znajdowało się w części środkowej w 4 osi od płd. Wejście to obsługuje lokal usługowy. Obecnie wystrój elewacji ogranicza się do podziałów poziomych wąskimi gzymsami międzykondygnacyjnymi i obramień otworów okiennych i drzwiowych profilowanymi opaskami oraz trójkątnymi naczółkami. Proponujemy przywrócenie historycznego wystroju elewacji poprzez wprowadzenie historycznych podziałów. W miejsce detali trudnych do odtworzenia z dokumentacji, proponujemy wprowadzenie uproszczonych pól, będących reminiscencją historycznych detali, dając możliwość odtworzenia w przypadku uzyskania archiwalnych materiałów pozwalających na rekonstrukcję. Na etapie rozbiórki należy zachować do powtórnego wykorzystania jedyny element oryginalnego wystroju zachowany w całości, jakim jest szeroki profilowany gzyms koronujący podparty gęsto dużymi konsolami z czołową powierzchnią w formie wywiniętego liścia akantu. Na etapie rozbiórki należy zachować do powtórnego wykorzystania kroksztyny wykonane ze sztucznego kamienia. Elementy te należy poddać konserwacji i powtórnie zamontować. Należy odtworzyć wszystkie zinwentaryzowane gzymsy.
Przywracamy pierwotny wystrój elewacji, który był bogaty zarówno w dekoracje sztukatorskie(stosujemy uproszczone pola w miejscach sztukaterii) jak i opracowanie tynków stanowiących tło. Na wszystkich kondygnacjach przywracamy tynki boniowane tasiemkowo. Na podstawie archiwalnej fotografii (o słabej rozdzielczości) z końca XIX w. proponujemy tynki fakturalne i boniowanie w partii parteru szersze niż na wyższych poziomach. Poziom parteru zamykamy szerokim fryzem pomiędzy dwoma profilami.
Wokół otworu wejściowego od frontu odtwarzamy uproszczony portyk z trójkątnym naczółkiem wspartym na pilastrach .
Wnętrze sieni i klatki w części przedniej w formie prostokątnej przestrzeni przesklepionej beczkowo z lunetami do odtworzenia na etapie budowy. Posadzka wykończona dekoracyjnym lastrykiem w połączeniu z mozaiką z drobnej kostki marmurowej 1×1 cm poddana konserwacji bez rozbiórki. Klatkę schodową, dość szeroką, z cegły ceramicznej na konstrukcji z belek stalowych, należy poddać konserwacji / ew. rozbiórce z ponownym wykorzystaniem materiałów do budowy nowej, okładzin drewnianych. Stopnie, podstopnie i podesty drewniane. Odtworzenie balustrady z prostych drewnianych słupków i z drewnianym pochwytem.
Na etapie rozbiórki należy zachować do powtórnego wykorzystania drzwi wewnętrzne drewniane, jednoskrzydłowe z naświetlem i przeszkloną częścią środkową skrzydła. Okna w klatce schodowej od strony płn., na podwórko, wysokie, prostokątne, zamknięte pełnym łukiem, podzielone na prostokątne drobne kwatery cienkimi szprosami, w części łuku rozstawionymi w wachlarz, należy poddać konserwacji i powtórnie zamontować.
Profile opasek, naczółki I piętra i gzymsy II malowane w kolorze jasnego piaskowca. Stolarkę okienną należy malować w takim samym kolorze jak elementy detalu. W związku z tym, że trudno stwierdzić jaki był oryginalny kolor tła tynków, proponujemy kolor nawiązujący do odkrytych śladów pierwotnego tynku w partii ściany mansardy na elewacji bocznej. Stolarka drzwiowa sosnowa, dekorowana snycersko i profilami oraz ornamentem rytym w płycinach drewnianych. Oryginalnie malowana w technice mazerunku na kolor mahoniowy – należy poddać konserwacji.
Elewacje wykończyć należy tynkiem konserwatorskim, w pastelowym odcieniu na bazie koszenili. Proponujemy odtworzyć narożną latarnię. Pokrycie dachu przewidujemy wykonać z blachy cynkowej/tytanowo-cynkowej na rąbek stojący, ze względu na mały spadek.
W elewacjach, frontowej i bocznej, wprowadzamy dodatkowo nowy współczesny detal okienny w postaci markizy/rolety wraz z osłoną podkonstruckji wykonaną z perforowanej delikatnie blachy stalowej. Detal ten jest reminiscencją widocznych na historycznych fotografiach rolet, zarówno kamienicy 21 jak i innych budynkach w mieście.
Zabieg ten wzbogaca elewacje oraz jest współczesną interpretacją, przetworzeniem historycznego detalu. W miejscu nowych otworów, takich jak drzwi wejściowe do usług od ul. Kasztelańskiej na poziomie parteru, zastosowaliśmy opaski okienne wykonane również z blachy stalowej. Wewnętrzną elewację od dziedzińca proponujemy wykonać w cegle, dodatkowo zachowujemy okna klatki schodowej, które należy poddać konserwacji, natomiast resztę otworów okiennych projektujemy jako współczesną prostą ślusarkę, z delikatnymi opaskami okiennymi wykonanymi z blachy stalowej.
- WIZUALIZACJA KASZTELAŃSKA FRONT
- elewacje
- przekroje
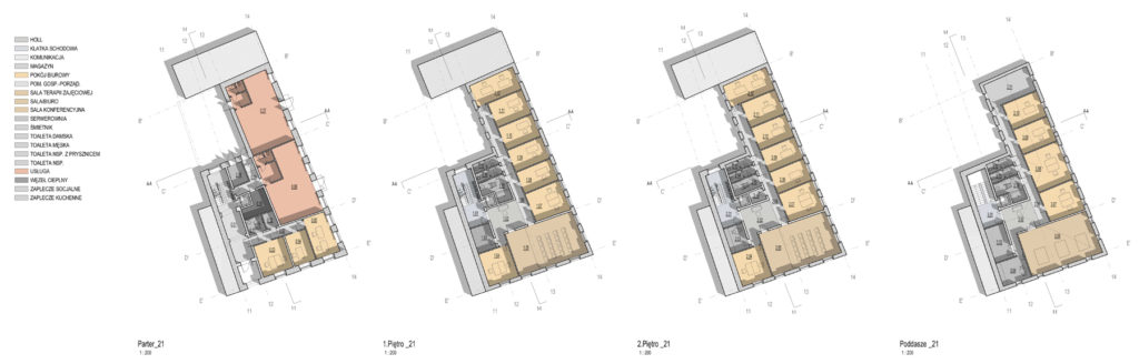
- rzuty
- wnętrze kwartau




