WYSTAWA STAŁA W MUZEUM KULTURY KURPIOWSKIEJ W OSTROŁĘCE
- RODZAJ INWESTYCJIOBIEKT UŻYTECZNOŚCI PUBLICZNEJ
- INWESTOR MUZEUM KULTURY KURPIOWSKIEJ W OSTROŁĘCE
- LOKALIZACJA OSTROŁĘKA, POLSKA
- POWIERZCHNIA 500 m2
- DATA2015 r.
- NAGRODA I miejsce w konkursie na opracowanie koncepcji aranżacji wystawy stałej i przestrzeni obsługi zwiedzających w Muzeum Kultury Kurpiowskiej w Ostrołęce
- ZESPÓŁ SZCZEPAN WROŃSKI
PIOTR ŁOSEK
AGATA FISIAK
ANNA MAJEWSKA
2015•11•09
Muzeum Kultury Kurpiowskiej pełni rolę jednego z najważniejszych ośrodków etnologicznych na Mazowszu. W kwietniu 2015 roku rozstrzygnięty został konkurs na opracowanie koncepcji wystawy stałej w Muzeum w którym pierwszą nagrodę otrzymała pracownia WXCA. W zwycięskiej pracy doceniono nowoczesny i minimalistyczny charakter projektowanej przestrzeni współgrający z eksponatami i historią Kurpiów. Dzięki ścisłej współpracy pomiędzy Muzeum, architektami z WXCA i wykonawcami ekspozycji udało się otworzyć wystawę po niespełna 5 miesiącach od ogłoszenia wyników konkursu architektonicznego.
Założeniem konkursowym było stworzenie atrakcyjnej dla odbiorcy przestrzeni wystawienniczej z uwzględnieniem potrzeb osób niepełnosprawnych oraz nastawionej na indywidualizację ścieżki zwiedzania. W zrealizowanej koncepcji postawiono nacisk na interakcję z widzem. Przykładem może być instalacja „W lustrze uliczek” która pełni rolę zarówno emocjonalnej retrospekcji dla rodowitych Kurpiów, ciekawy wizualnie obiekt dla turystów, jak i formę zabawy dla najmłodszych. Zaproponowane duże gabarytowo gabloty w sali ?Opowieść na bruku? będące luźną metaforą pierzei kurpiowskiego miasteczka w połączeniu z dźwiękiem przestrzennym stworzyły iluzję placu targowego z jego całym gwarem i różnorodnością. Te przykładowe działania mają na celu przenieść widza w okres dwudziestolecia międzywojennego i ukazać w ciekawym świetle historię Ostrołęki i regionu kurpiowskiego z jego bogatą obrzędowością, sztuką i rzemiosłem.
- SALA F – Biją dzwony
- Opis wystawy
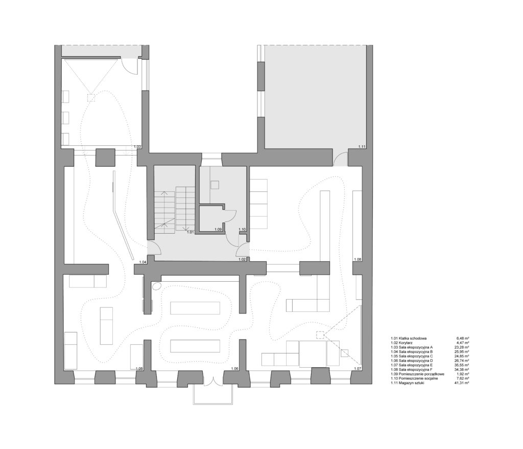
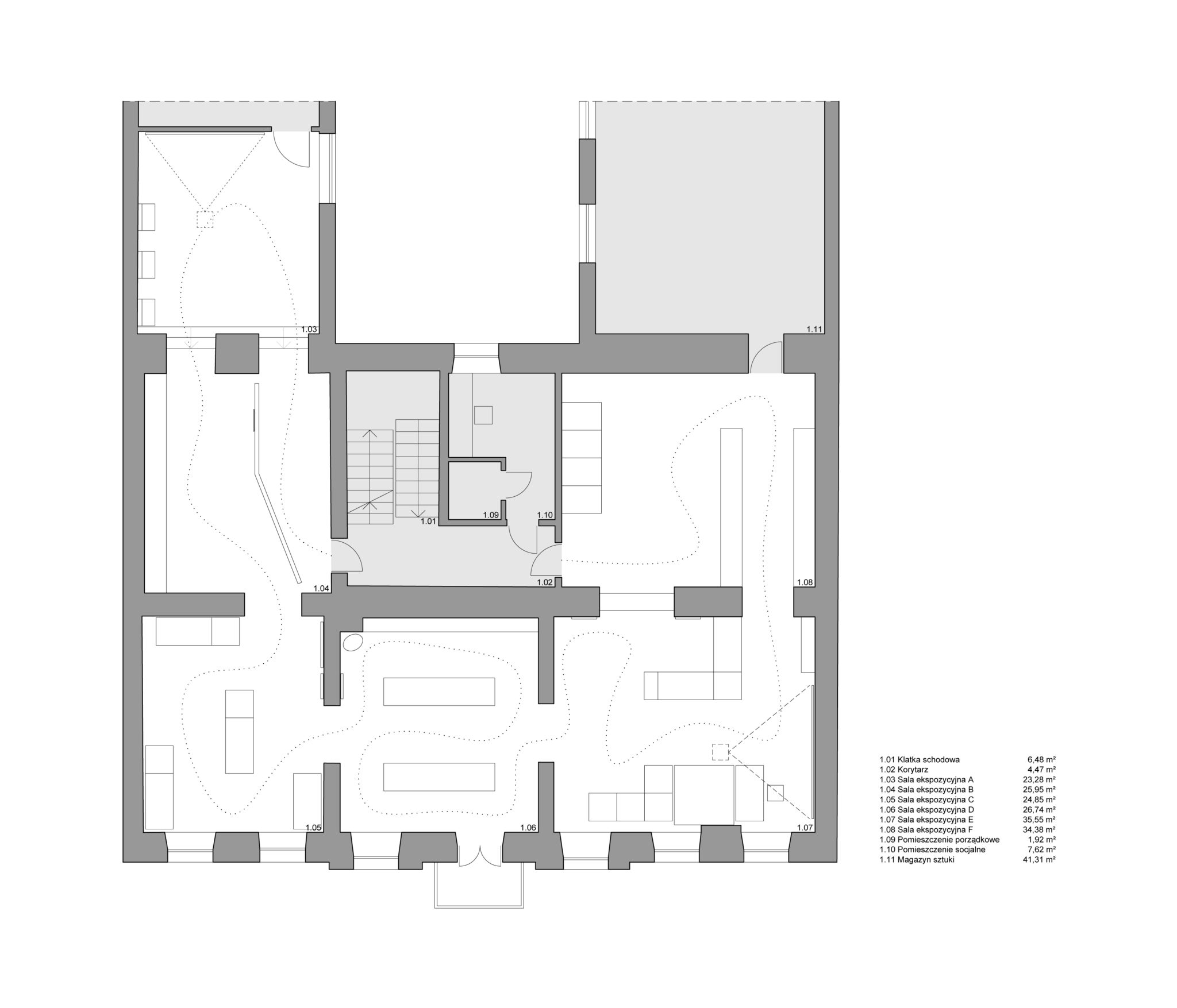
- Rzut I piętra
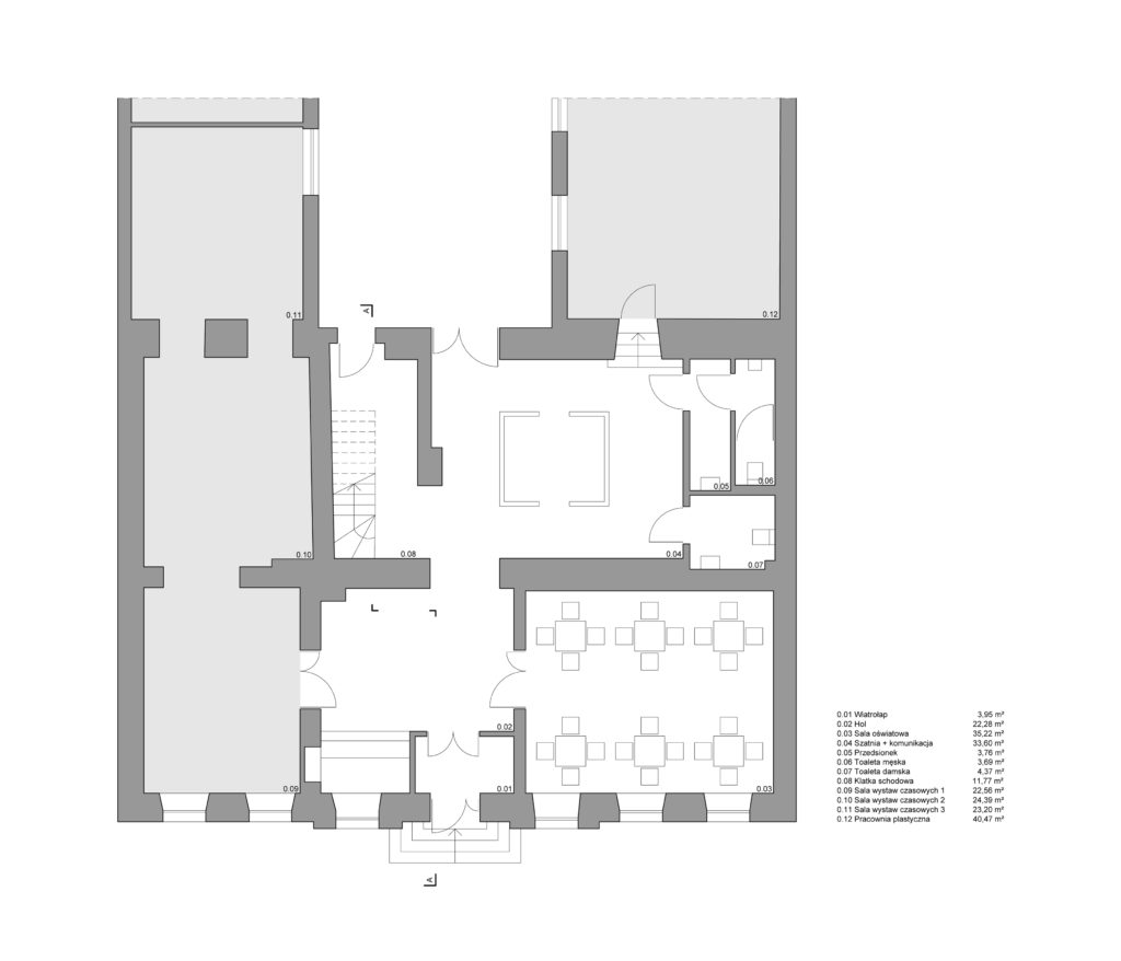
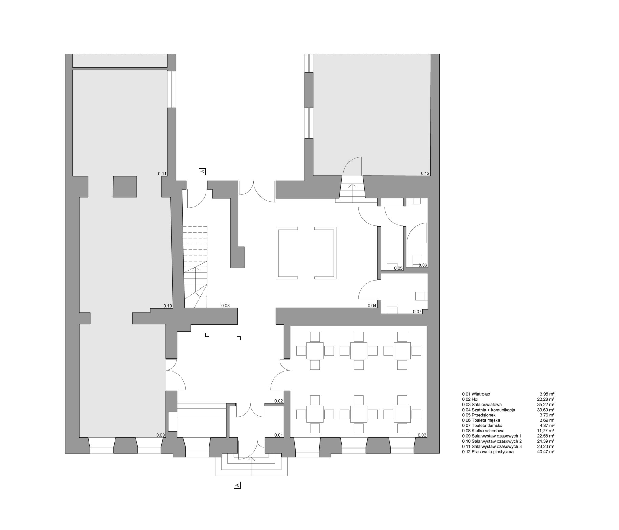
- Rzut parteru
- SALA B – W lustrze uliczek
- SALA C – Szepty codzienności
- SALA E – W rytmie kołowrotka
- Wprowadzenie na wystawę







