Zespół przedszkolno- żłobkowy w Starej Miłosnej
- RODZAJ INWESTYCJIOBIEKT UŻYTECZNOŚCI PUBLICZNEJ
- INWESTOR GMINA STARA MIŁOSNA
- LOKALIZACJA WARSZAWA, POLSKA
- DATA2014 r.
- ZESPÓŁ ZBIGNIEW WROŃSKI
SZCZEPAN WROŃSKI
MAŁGORZATA DEMBOWSKA
ANNA MAJEWSKA
2013•11•29
Koncepcja przedszkola w Starej Miłosnej zakłada stworzenie przestrzeni przyjaznej najmłodszym użytkownikom przy jednoczesnym spełnieniu kryteriów wymaganych w budownictwie pasywnym. Układ budynków w proponowanej przez nas koncepcji został zdeterminowany przez kilka aspektów, które były dla nas nadrzędne w procesie projektowym.
ŚWIATŁO
Ukształtowanie obiektu zapewnia dostęp wszystkich sal przeznaczonych dla dzieci do światła słonecznego od strony południowej, przy jednoczesnym widoku na plac zabaw oraz otaczającą go zieleń. Wycofanie budynku wgłąb działki pozwala na stworzenie wspólnego, nasłonecznionego dziedzińca przeznaczonego do zabawy. Część drzew iglastych od strony południowej została zastąpiona drzewami liściastymi, które zapewniają cień latem, a jednocześnie nie blokują dostępu promieni słonecznych zimą.
IZOLACJA AKUSTYCZNA / BEZPIECZEŃSTWO
Lokalizacja działki w niedużej odległości od dość ruchliwych ulic może powodować uciążliwości dla takiej funkcji jak przedszkole. Dlatego też budynek częściowo zagłębiony w ziemi tworzyć ma strefę wyciszenia w rejonie dziedzińca. Od hałasu ulicy 1 Praskiego Pułku chronić ma kubatura budynku żłobka, od strony południowej natomiast zakłada się lokalizację zwartej zabudowy w rejonie działki A-12, która stanowić ma ochronę akustyczną terenu przedszkola od hałasu ulicy Trakt Brzeski. Jednocześnie przewiduje się nasadzenia krzewów oraz niskich drzew, które dodatkowo wydzielą teren przedszkola od drogi dojazdowej.
SKALA DZIECKA
Budynek przedszkola został zaprojektowany w taki sposób, aby jego struktura była bliska skali dziecka. Podział wnętrz na mniejsze przestrzenie, dostarczające dzieciom różnorodnych bodźców.
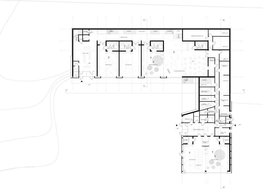
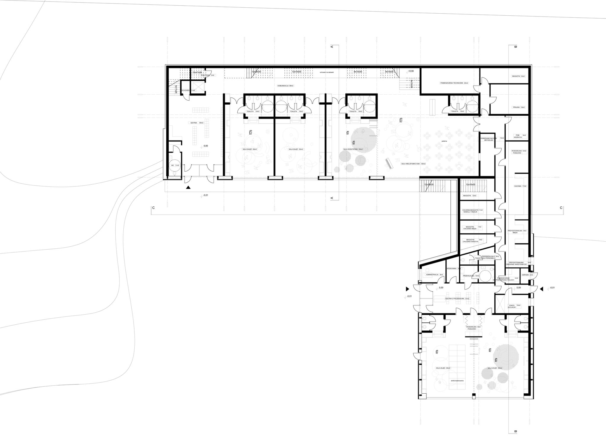
Sale zlokalizowane na parterze przeznaczone są dla najmłodszych dzieci (2 sale żłobka oraz 2 sale dla 3-latków w przedszkolu). Ich wnętrze zostało zaprojektowane jako sekwencja otworów i zakamarków, pozwalających na zabawę w różnych kształtach przestrzeni, stanowiąc jednocześnie część zapleczową sali w postaci szafy.
Powierzchnia piętra przeznaczonego dla dzieci starszych (4 – i 5 – latków) została podzielona na szereg przestrzeni o różnej skali. Każda z sal została wyposażona w dodatkową salkę na antresoli, wykorzystującą przestrzeń nad węzłem sanitarnym, doświetloną oknem połaciowym. Wykorzystana może być jako przestrzeń czytania bajek i niezobowiązującej „drzemki”, która mogłaby wyeliminować niepopularne wśród starszych dzieci leżakowanie.
Przedszkole zostało zaprojektowane jako 6 – oddziałowe z możliwością prowadzenia zajęć dla siedmiu grup – siódma sala zlokalizowana jest na parterze. Jeśli w przedszkolu nie ma wystarczającej liczby dzieci pozwalającej na stworzenie siedmiu grup, sala ta może być wykorzystywana jako sala zajęć dodatkowych lub jako poszerzenie sali wielofunkcyjnej.
- Wizualizacja
- aksonometria
- przekrój
- przekrój
- rzut kondygnacji parteru
- schematy
- wnętrze sali przedszkola
- wnętrze sali żłobka







